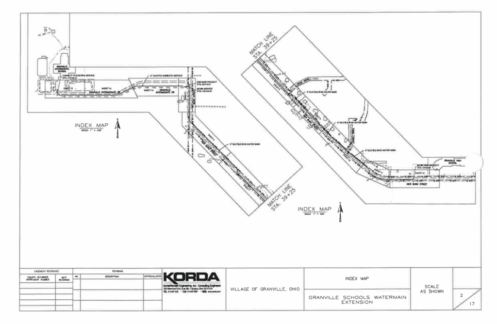
The village of Granville has assumed responsibility for and control of nearly 5,000 feet of a waterline extension connecting the Granville Intermediate School to village infrastructure.
The Granville Village Council voted in November to take ownership of 4,935 feet of a 7,965-foot waterline – after ensuring the line was constructed properly – along New Burg Street.
The approval gives the village of Granville ownership of the waterline, which cost just under $1 million and was funded by the Granville Exempted Village School District, said Village Manager Herb Koehler.
Granville Intermediate School had been receiving water from a small, on-site, water-treatment plant that became expensive to maintain. In 2024, the school contacted the village to request water service, which required the extension from the village’s system near Granville High School west to the intermediate school, which serves grades 4-6.
The extension could have been designated as a private line, meaning the school would be responsible for all upkeep and maintenance costs. The school decided to install the waterline and dedicated it back to the village once it was installed, meaning that the village acquired the ownership of the waterline and is responsible for maintaining the infrastructure.
Of the 7,695 feet of waterline, 4,935 feet is owned by the village, and 2,760 feet is owned by Granville Intermediate School.

Construction of the waterline extension started in April and was completed in September. Extensive testing of the infrastructure included water quality and pressure tests. The tests were overseen by the village and performed by Kendrick Excavating Inc., a Muskingum County-based contractor that installed the waterline.
When any customer connects to a village waterline for the first time, they are generally charged a one-time capacity fee – which can range from a few thousand dollars to well over $100,000 – to account for the additional maintenance on the main waterline.
Koehler said the village waived the capacity fee for Granville Intermediate School in exchange for an easement – which grants access to a property without transferring ownership – for potential future water wells at the school site on Burg Street that could serve the village.
“This is important because we are always looking for opportunities to add to our water supply. … Someday – it could be 20 years from now – if we decide we want to explore wells on that property, the easement will allow us to do that,” Koehler said.
Donna Chang writes for TheReportingProject.org, the nonprofit news organization of Denison University’s Journalism program, which is supported by generous donations from readers. Sign up for The Reporting Project newsletter here.
